Eladó Családi ház, Békésszentandrás

#714400065

CSAK NÁLUNK  
Eladó Családi ház

24.9 millió Ft

Békésszentandrás
Alapterület:
80 m2
Szobák száma:
2
Állapot:
Felújított
Építési mód:
Vályog
Jó közlekedéssel
Kertkapcsolatos
Sürgős
Zöldövezeti

Kérjen személyes bemutatást!
Adja meg adatait, és hogy mikor érne rá!

Az Adatkezelési tájékoztatót elolvastam és elfogadom.

Megfelelő időpontok

Hétköznap délelőtt
Hétköznap délután
Hétköznap este
Hétvégén délelőtt
Hétvégén délután
Hétvégén este
Kérés elküldése
1 652 m2
Felújított
Klímás hűtés-fűtés
Részben bútorozott
Nyugat
Önálló kert
Komfort
G
Bevezetve (230 Volt)
Van, saját vízórával
Gázvezeték a telek előtt
Közműhálózatba bekötve

Békésszentandráson családi ház eladó!

Ritkaság a piacon! Békésszentandrás szélén eladó egy felújított, kis méretű, hangulatos, beköltözhető vályogház.

Tökéletes választás annak, aki csendre, nyugalomra és egy nagyobb telekre vágyik, minimális fenntartási költségek mellett. Nézze meg, beleszeret!

-Természetes építőanyag

- Felújított állapot

- Csendes, faluszéli elhelyezkedés

- Nagy telekméret, gazdálkodásra, önellátásra

- H-tarifás hűtés, fűtés

- Beépített, gépiesített konyha

- Nyílászárók cseréje

- Szigetelés

- Jó közlekedés

- Garázs

Vidéki életre vágyik, ahol a hagyomány találkozik a modern kényelemmel? Nem akar bajlódni a felújítással? 

Akkor ez a hirdetés Önnek szól. 

Előkertes családi ház, melynek felújításakor-helyiségek kialakításakor a hosszútávú lakhatást, kicsi rezsit, és élhető otthont álmodtak meg. A nyugati fekvésű fedett, hidegburkolattal ellátott terasz építését, az  elviselhetetlen forró nyár indokolta. A gazdasági épület betonozott, értéket nem képvisel, viszont tárolóként nagyon hasznos egy kertes házban. A gépkocsinak lemeztároló biztosítja a helyet. Öntözésre fúrt kút áll rendelkezésre. Jelenleg a teleknek a 2/5-e hasznosított az építmények, udvar kialakításával, a többi terület bio, fűnyíróval kezelt füves rész. 

Per, teher, igénymentes! 3%-os otthonteremtő hitelre (is) alkalmas! 

Békésszentandrás területén van Magyarország 5. legnagyobb állóvize, a Hármas-Körös Kákafoki-holtága, ezért tartják sokan az Alföld legszebb fekvésű falujának. Közvetlen vízparti nyaralók, helyi sörfőzde, a Bordűr hotel, és számos országos hírű látnivaló, horgászati lehetőség teszi vonzóvá településünket. Békés megyében Szarvastól nyugatra helyezkedik el, a 44-es főút szeli ketté. 

 Az ingatlanról, a hirdetésekben szereplő információk a megbízótól kapott adatok alapján készítettük, irodánk azokért felelősséget nem vállal!

 

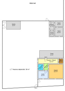
Helyiség Méret (m2)
Szoba 25.4
Szoba 9.5
Konyha 7
Fürdőszoba + WC 3.5
Közlekedő 4.3
Kamra, Éléskamra, Spájz 2.5
Étkező 6
Terasz 23

Kérdése van?
Adja meg adatait és felhívjuk!

Az Adatkezelési tájékoztatót elolvastam és elfogadom.
Üzenet küldése